
Villas mitoyennes Conthey 5.5 pièces
Maison double 5.5 pièce(s) 135 m² - Conthey
Description
Joli projet bien situé idéal pour des familles désirants s'établir dans la région.Bien desservie la Commune de Conthey est toujours plus attractive pour les familles, le foncier se fait rare et la nécessité de densifier le sol pour pouvoir offrir en entrée de gamme des villas familiales bien situées, fonctionnelles et accessibles à un maximum de clients.
Située entre Sion et Riddes, vous bénéficierez d'une Gare, de toutes les écoles, des commerces et des transports publics ainsi qu'une variété de Café-Restaurants dans toute la région ainsi que d'installations sportives.
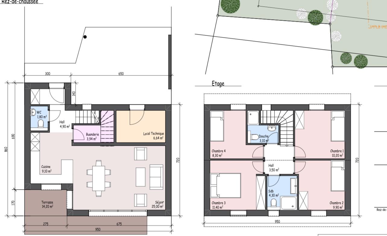
La distribution de ces villas sont les suivantes:
Lot de 4 unités
- 2 aux extrémités : CHF 830'000.-
- 2 au milieu : CHF 785'000.-
Le terrain est plus important aux 2 extrémités + 35 m2 et + 60 m2
Distribution Rez :
- Hall
- Cellier
- Local Technique & rangements
- Salon
- Salle à manger
- Cuisine
- Terrasse couverte
- Jardin privatif
- Couvert pour 2 voitures
Etage 1
- hall
- Salle de bain 1
- 4 chambres
- Salle de bain 2
** Variante 2
Possibilité de faire aussi 3 chambres et dressing, selon vos besoins.
Renseignements complémentaires à l'Agence.
Nombre de box, garages et places de parc
- Place de parc couverte
- 2
Environnement
- Calme | Tranquille
- Campagne
- Village
Vue
- Dégagée
Exposition
- Sud
Proximité
- Commerces
- Gare
- Transports publics
Extérieur
- Aménagé
- Jardin
Intérieur
- Animaux bienvenus
- Cuisine équipée
Equipement technique
- Chauffage principal
- Pompe à chaleur air-eau
- Lave-vaisselle
- Oui
www.immo-trading.com
info@immo-trading.com
BT Building Technology Sàrl
+41 79 259 57 81
A votre service pour toute question ou visite éventuelle sur site.
| Caractéristiques PIT-12411 | |
|---|---|
| Destination | A vendre |
| Zone | Résidentielle |
| Disponibilité | De suite |
| Prix | CHF 785'000.- |
| Nombre de pièces | 5.5 |
| Surface habitable | 135 m2 |
| Surface terrain | 251 m2 |
| Vue dégagée | |
| Place de parc | |
| Animaux permis |